Projekt sudové sauny na Liberecku
Jedným z našich referenčných projektov je aj veľmi podarená sudová sauna na Liberecku, pre ktorú zákazník pripravil miesto s krásnym výhľadom. Sauna je preto situovaná voľne v prírode.
Aby podkladové materiály nerušili prírodný vzhľad, bolo ukotvenie zabezpečené formou zinkovaných kotviacich prvkov, ktoré sú k dostaniu v obchodoch so stavebnými materiálmi. S použitím zemných zinkovaných skrutiek sa dá betónu vyhnúť úplne. Tieto skrutkovacie kotvy so závitom sa vyrábajú z pozinkovanej ocele a sú vhodné pre stavby a zariadenia od detských ihrísk až po stojany na dopravné značky a vlajkové stožiare. Vykazujú značnú nosnosť a nekorodujú. Pomerne jednoducho sa ukotvujú. Zemné skrutky sú vhodné do ľubovoľného druhu pôdy, s výnimkou skalnatého podkladu. Pokiaľ nie je možné použiť vrut, môžeme použiť podobnú kotvu, ktorá sa neskôr betónuje.
Odporúčame saunu umiestniť na nesavý podklad tak, aby drevený nosník nenasával vodu, čím by mohlo dôjsť k jeho neskoršiemu poškodeniu plesňami.
Popis sauny:
Sudová sauna termowood 3000 mm
Sudová sauna o dvoch miestnostiach. Sauna je vybavená prezlekaciou miestností.
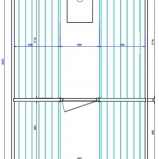
Rozmery:
Dĺžka 3000 mm, priemer 2070 mm. Potiarne je 1710 mm dlhá, odpočiváreň 952 mm dlhá. Sauna je určená pre saunovanie 2 - 4 osôb.
Materiál:
obklady stien sauny – termowood borovica severská
obklady lavíc sauny – osika
Sauna nie je pokrytá asfaltovým šindľom, má iba postranné laty
Dvere:
celosklenené dvere z odpočivárne do potiarne
vstupné dvere drevené s dlhým skleneným priezorom
Kachle:
Fínske saunové kachle Harvia M3 na drevo, výkon 13kW
Nerezový komínový set Harvia





























































